Představujeme k prodeji exkluzivní vilu s bazénem, která se nachází v klidné lokalitě oblasti Baška na ostrově Krk.
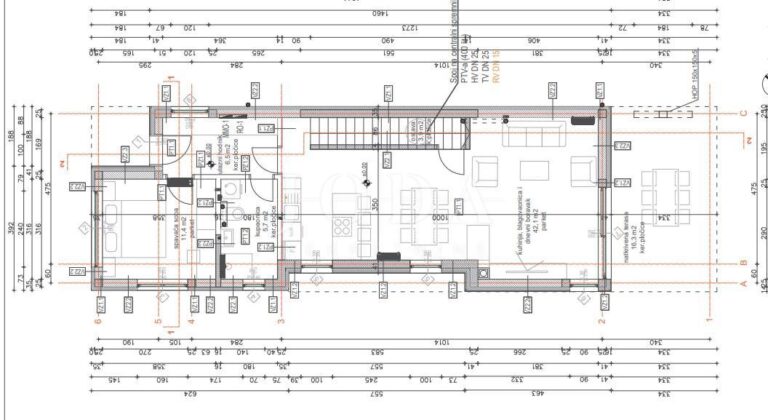
V přízemí se nachází prostorná a funkční zóna, která je ideální pro každodenní život a setkávání s rodinou a přáteli. Zahrnuje:
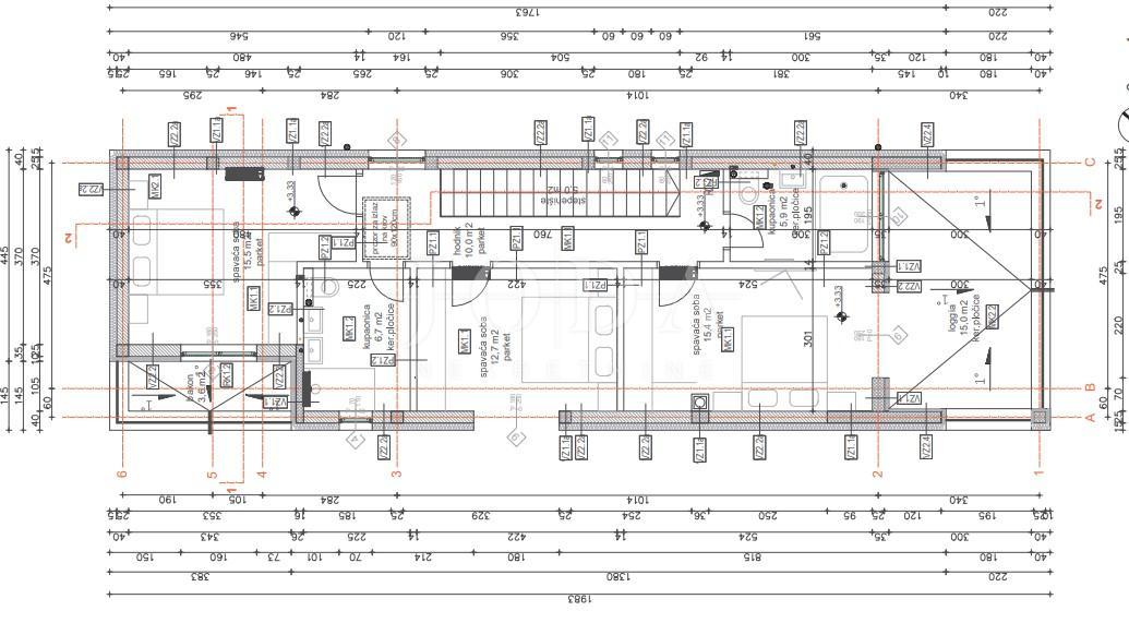
První patro je navrženo jako klidová zóna s dostatkem soukromí pro všechny obyvatele. Obsahuje:
Při stavbě vily byly použity nejkvalitnější materiály a vybavení, což zaručuje dlouhou životnost, komfort a nízké provozní náklady. Nemovitost podléhá DPH.
Tato vila představuje jedinečnou příležitost pro ty, kteří hledají luxusní bydlení v klidné lokalitě s blízkostí moře a veškerou občanskou vybaveností.
