Zpět do Nabídky

Primošten: Luxusní apartmán s úchvatným výhledem na moře

Popis nemovitosti

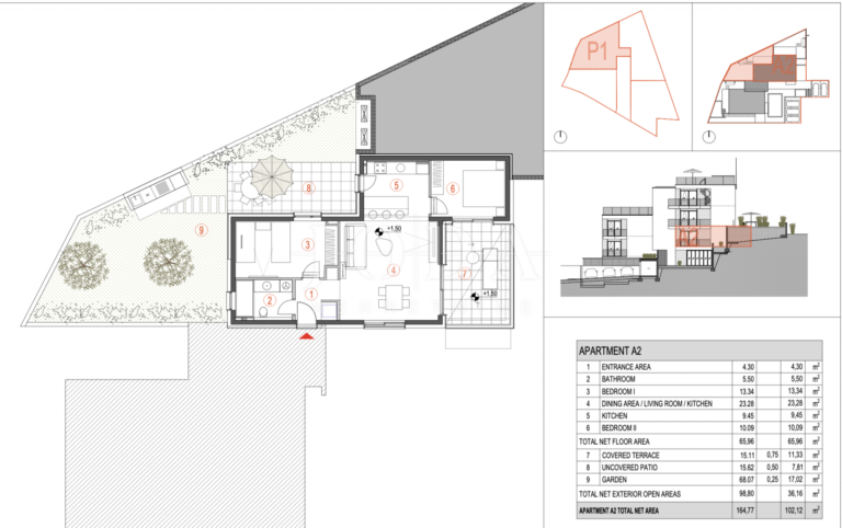
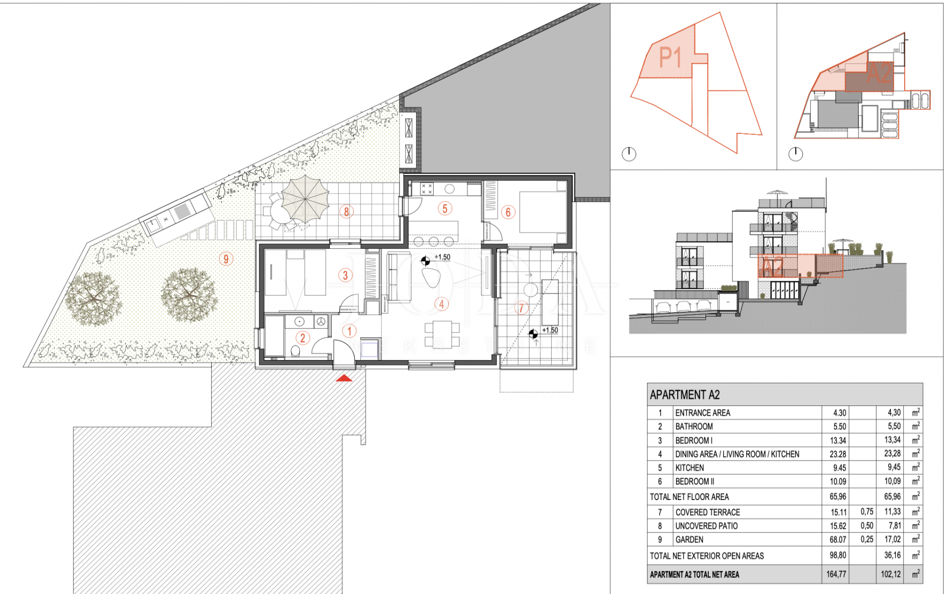
Prostorný a elegantně zařízený apartmán v Primoštenu

V atraktivní lokalitě v Primoštenu se prodává prostorný a elegantně zařízený apartmán označený jako P1 A2, ideální pro klidnou dovolenou v blízkosti veškeré důležité občanské vybavenosti.


Dispozice apartmánu

Apartmán se skládá z:

  • Vstupní haly
  • Plně vybavené kuchyně
  • Prostorného obývacího pokoje s jídelnou
  • Dvou ložnic
  • Koupelny

Venkovní vybavení a doplňky

Nemovitost nabízí také:

  • Letní kuchyň
  • Krytou i nekrytou terasu
  • Oplocenou zahradu
  • Soukromý bazén se sluneční terasou a lehátky
  • Úložný prostor
  • Vlastní parkovací místo

Standardy a vybavení

Nemovitost je postavena podle nejvyšších standardů, které zahrnují:

  • Fasádní systém ETICS
  • Bezpečnostní vstupní dveře
  • Parkety I. třídy
  • Vysoce kvalitní keramika třídy A a nadstandardní sanitární keramika
  • Baterie a sprchy GROHE
  • Tepelné čerpadlo a podlahové vytápění
  • Hliníkové truhlářské práce s žaluziemi
  • Videovrátný

Ideální pro

Tento apartmán je ideální volbou pro rodinu, páry nebo přátele, kteří si chtějí užít soukromí, pohodlí a výhled na moře, s moderním interiérem a špičkovým venkovním vybavením, které poskytuje kompletní středomořský zážitek.

Lokalita

Základní informace

Kód nemovitosti
7150
Druh nemovitosti
Apartmány a byty
Obec
Primošten
Cena:
612.720
EUR
Pokud máte zájem o tuto nemovitost
Zavolejte nám: +420 608 056 566  nebo nám nechte vzkaz zde.

Specifikace nemovitosti

Podlahová plocha
111
Počet obytných místností
3
Patro
1. patro
Ložnice
2
Koupelna
1

Zaujala vás tato nabídka?

Zavolejte nám na + 420 608 056 566 nebo nám napište

Adriatic Real

Realitní kancelář Adriatic Real s.r.o. specializující se na zprostředkování koupě nemovitosti na jadranském pobřeží Chorvatska a Černé Hory.
phonechevron-down
linkedin facebook pinterest youtube rss twitter instagram facebook-blank rss-blank linkedin-blank pinterest youtube twitter instagram