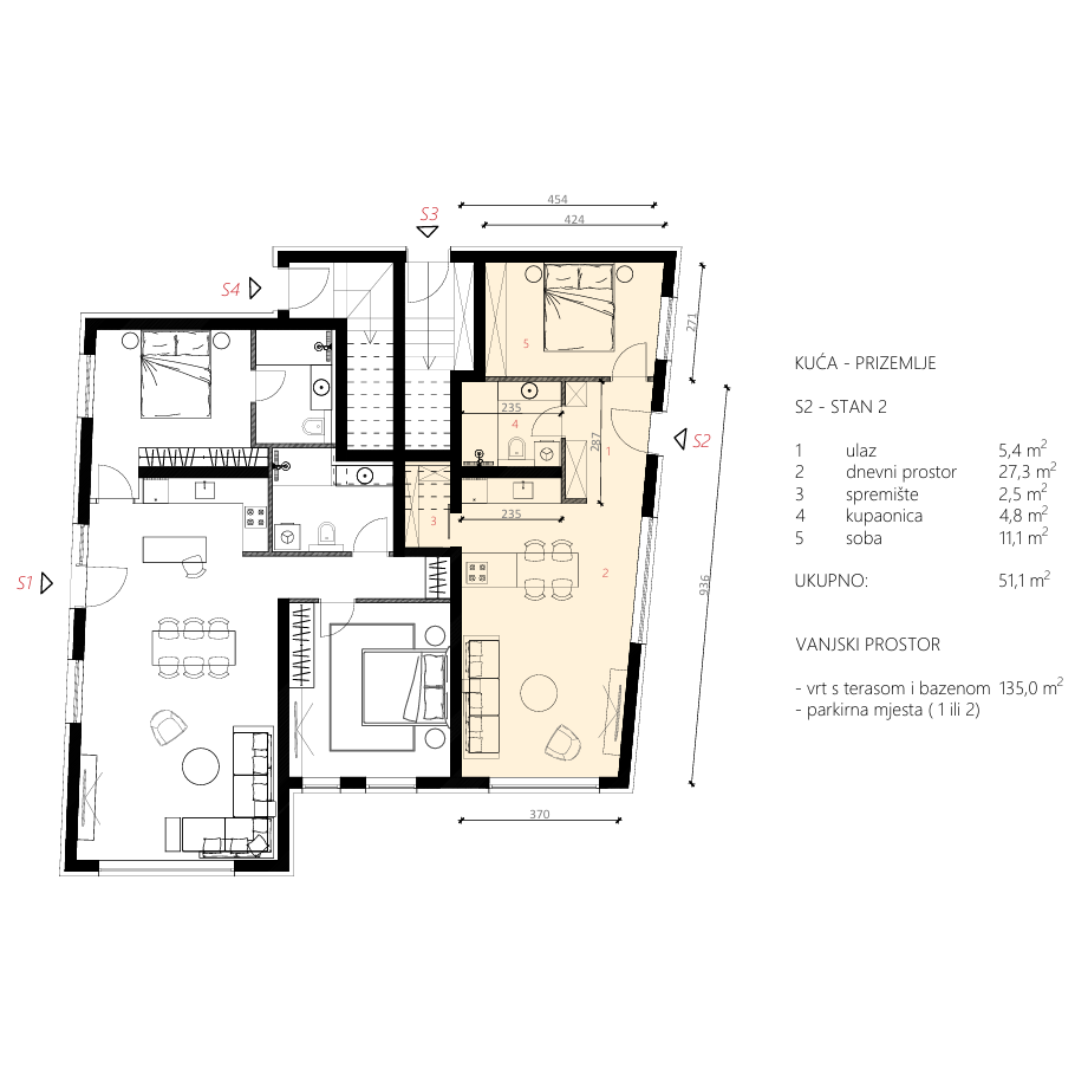
Novostavba – 51 m² – parkovací místo – soukromá zahrada – nastěhování
Na prodej je moderní apartmán v přízemí novostavby se soukromým bazénem, zahradou a výhledem na moře, která se nachází v atraktivní a klidné vesničce Mandre na ostrově Pag. Budova má pouze čtyři bytové jednotky, což zaručuje soukromí, kvalitu života a vysokou úroveň komfortu. Tento apartmán, ačkoli je menší velikosti, nabízí veškeré vybavení špičkové novostavby a je ideální pro páry, menší rodiny nebo jako luxusní apartmán k dovolené a pronájmu.
Mandre je oblíbenou destinací na ostrově Pag, známou pro svou klidnou atmosféru, čisté moře a blízkost veškeré občanské vybavenosti – obchodů, restaurací, pláží a promenád. Lokalita nabízí perfektní kombinaci soukromí a dostupnosti.
