Zpět do Nabídky

Novostavba: Luxusní mezonet s nekonečným bazénem a výhledem, Mandre, 200m²

Popis nemovitosti

Luxusní mezonetový apartmán s nekonečným bazénem a nádherným výhledem na Jaderské moře - Mandre, ostrov Pag

3 ložnice - velká terasa - bazén 17 m² - novostavba nejvyšší kvality

V Mandre na ostrově Pag se prodává unikátní mezonetový apartmán, který se nachází v moderní a exkluzivní novostavbě. Nemovitost je určena pro ty, kteří hledají maximální pohodlí, luxus a úchvatný panoramatický výhled. S privátním nekonečným bazénem o rozloze 17 m² a prostornou terasou o rozloze 59,8 m² nabízí apartmán absolutně vše pro potěšení na nejvyšší úrovni - ať už hledáte domov pro sebe, luxusní chatu nebo luxusní investici k pronájmu.


Základní charakteristiky

  • Mezonetový apartmán - optimální dispoziční řešení pro maximální funkčnost a soukromí
  • Celkem 3 ložnice
  • Nekonečný bazén o rozloze 17 m² - s otevřeným výhledem na moře
  • Velká terasa - 59,8 m² - ideální pro opalování, společenské akce, večeře s výhledem
  • Úložný prostor + technická místnost k bazénu - celkem 8 m²
  • Jeden z nejkrásnějších výhledů na Jadranu
  • 2 parkovací místa

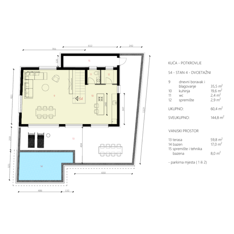
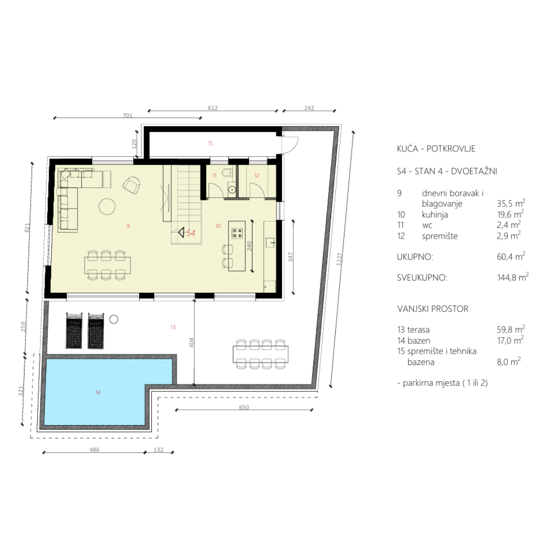
Plocha apartmánu

Ložnice

  • Vstup/schodiště: 7,8 m²
  • Chodba/úložný prostor: 11,8 m²
  • Koupelna: 6,3 m²
  • Ložnice: 11,6 m²
  • Ložnice: 12,0 m²
  • Hlavní ložnice: 20,0 m²
  • Koupelna: 6,0 m²
  • Schodiště: 8,9 m²
  • Celkem: 84,4 m²

Podkroví

  • Obývací pokoj a jídelna: 35,5 m²
  • Kuchyně: 19,6 m²
  • Toaleta: 2,4 m²
  • Úložný prostor: 2,9 m²
  • Celkem: 60,4 m²

Celková vnitřní plocha: 144,8 m²

Venkovní prostor

  • Terasa: 59,8 m²
  • Bazén: 17 m²
  • Úložný prostor a bazénové vybavení: 8 m²

Další vybavení a specifikace

  • Podlahové vytápění v celém bytě
  • Klimatizace ve všech místnostech
  • Hliníkové prosklené stěny - elegantní vzhled a spousta přirozeného světla
  • Trojité zasklení a automatické žaluzie - špičková izolace a komfort
  • Tepelná izolace (10 cm polystyren)
  • Vysoce kvalitní keramické obklady v celém bytě
  • Plně zařízené koupelny

Poloha

Byt se nachází v Mandre - prestižní lokalitě na ostrově Pag, známé svým čistým mořem, udržovanými plážemi a klidnou atmosférou. Veškerá občanská vybavenost (pláž, obchody, restaurace) je dostupná pěšky a výhled sahá směrem k otevřenému moři a ostrovům Zadarského souostroví.

Lokalita

Základní informace

Kód nemovitosti
356
Druh nemovitosti
Apartmány a byty
Oblast
Severní Dalmácie
Obec
Kolan
Vzdálenost od moře
250m
Cena:
660.000
EUR
Pokud máte zájem o tuto nemovitost
Zavolejte nám: +420 608 056 566  nebo nám nechte vzkaz zde.

Specifikace nemovitosti

Podlahová plocha
190.00
Počet obytných místností
4
Patro
1
Ložnice
4 a více
Koupelna
3
Klimatizace
Ano
Balkón / terasa
Ne
Výhled na moře
Ano
Energie
Vodovodní síť, Kanalizace, Elektřina
Bazén
Ano
Rok výstavby
2026
Stav nemovitosti
Novostavba
Zahrada
Ne
Zařízenost
viz text

Zaujala vás tato nabídka?

Zavolejte nám na + 420 608 056 566 nebo nám napište

Adriatic Real

Realitní kancelář Adriatic Real s.r.o. specializující se na zprostředkování koupě nemovitosti na jadranském pobřeží Chorvatska a Černé Hory.
phonechevron-down
linkedin facebook pinterest youtube rss twitter instagram facebook-blank rss-blank linkedin-blank pinterest youtube twitter instagram