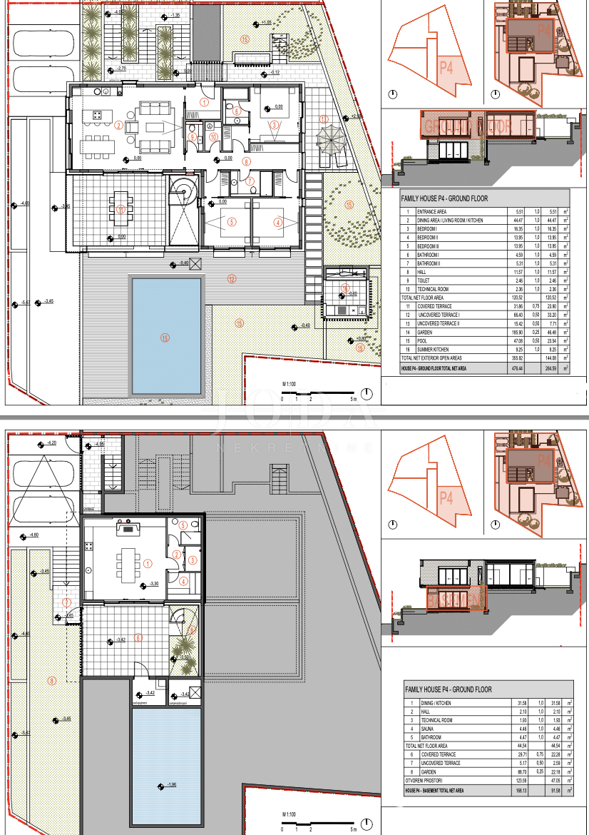
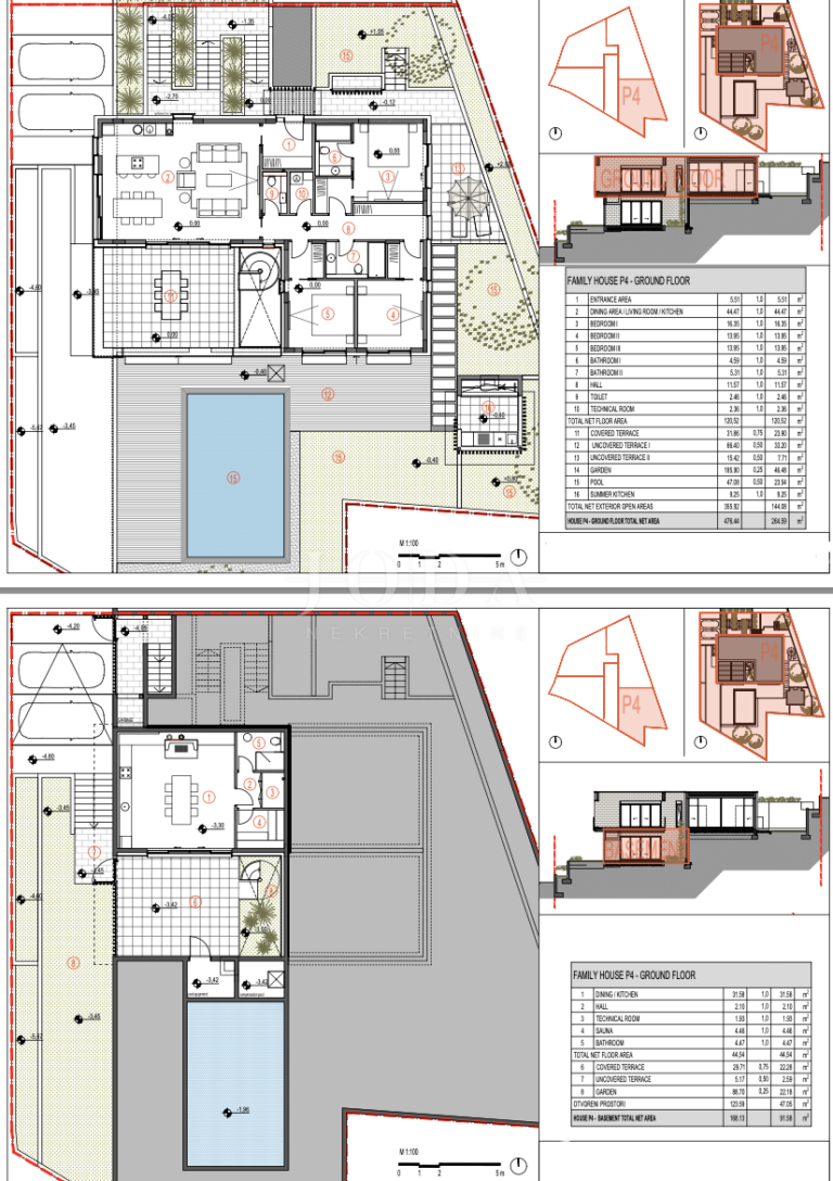
Představujeme exkluzivní vilu k prodeji v atraktivní lokalitě v Primoštenu. Tato moderní rezidence se rozkládá na dvou podlažích a nabízí celkovou čistou plochu 368,67 m². Vila je navržena tak, aby poskytovala dokonalou rovnováhu mezi luxusem, funkčností a venkovním bydlením, s krásným výhledem na moře a klidným okolím.
Přízemí vily je koncipováno pro pohodlné a prostorné bydlení. Zde naleznete:
Venkovní prostor přízemí je ideální pro relaxaci a společenská setkání. Zahrnuje:
Suterén poskytuje další zázemí pro pohodlný pobyt a je propojen s venkovními prostory. Zde se nachází:
Venkovní prostor suterénu doplňuje celkový dojem luxusu a soukromí:
Vila je postavena podle nejvyšších standardů, což zaručuje kvalitu a dlouhou životnost. Mezi klíčové prvky patří:
Tato luxusní vila je ideální volbou pro rodiny, páry nebo přátele, kteří hledají soukromí, pohodlí a špičkový středomořský životní styl. S bohatým vybavením a krásnou přírodou v okolí je zaručeno, že zde strávíte nezapomenutelné chvíle.
