Zpět do Nabídky

Luxusní apartmán 2+kk s výhledem na moře, 74m², Novostavba Mandre

Popis nemovitosti

PRODEJ – Apartmán v 1. patře s výhledem na moře – Mandre (ostrov Pag)

Novostavba – 73 m² – 2 ložnice – 1 parkovací místo – nastěhování

Prodává se prostorný apartmán v prvním patře moderní novostavby, která se nachází v klidné a dobře udržované
osadě Mandre na ostrově Pag. Budova obsahuje pouze čtyři bytové jednotky, což zaručuje větší soukromí a kvalitu
bydlení. Apartmán o rozloze 73 m² nabízí mimořádně funkční dispozici, dvě ložnice, vzdušný obývací pokoj s
přístupem na terasu a kvalitní vybavení a provedení – ideální pro rodinný život, dovolenou nebo turistický
pronájem.


Základní informace

  • Obytná plocha: 73 m²
  • Patro: 1. patro
  • Počet ložnic: 2
  • Počet parkovacích míst: 1 (zahrnuto v ceně)
  • Celkový počet bytů v budově: 4
  • Zahájení výstavby: září 2025
  • Předpokládaný termín nastěhování: 1. června 2026

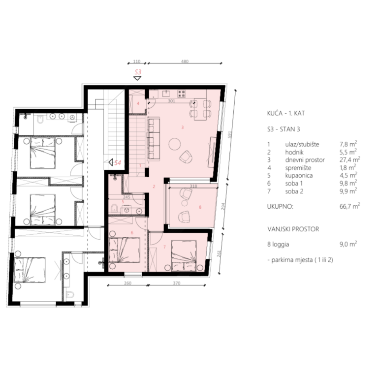
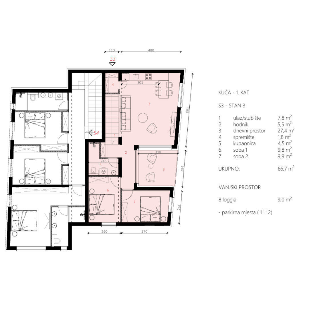
Plocha bytu

  • Vstup: 7,8 m²
  • Chodba: 5,5 m²
  • Obytná plocha: 27,4 m²
  • Úložná místnost: 1,8 m²
  • Koupelna: 4,5 m²
  • Ložnice: 9,8 m²
  • Ložnice: 9,9 m²
  • Celkem: 66,7 m²
  • Lodžie: 9 m²

Obsah a vybavení

  • Podlahové vytápění v celém bytě
  • Klimatizace ve všech místnostech včetně obývacího pokoje
  • Automatické žaluzie
  • Trojité zasklení pro vynikající tepelnou a zvukovou izolaci
  • Hliníkové prosklené stěny - moderní a světlý prostor
  • 10 cm tepelná izolace (styropor)
  • Keramické dlaždice v celém bytě - praktičnost a estetika
  • Plně vybavené koupelny s moderní sanitární keramikou

Zvláštnosti

  • Otevřený nebo částečný výhled na moře
  • Moderní dispozice a kvalitní výstavba
  • Klidná lokalita vhodná pro dovolenou a bydlení po celý rok
  • V blízkosti moře, obchodů, promenád a restaurací

Poloha

Mandre je známé a vyhledávané místo na ostrově Pag s udržovanými plážemi, křišťálově čistým mořem a uvolněnou
středomořskou atmosférou. Lokalita je ideální pro ty, kteří hledají klid, soukromí a snadný přístup ke všem
službám.

Lokalita

Základní informace

Kód nemovitosti
358
Druh nemovitosti
Apartmány a byty
Oblast
Severní Dalmácie
Obec
Kolan
Vzdálenost od moře
250m
Cena:
290.000
EUR
Pokud máte zájem o tuto nemovitost
Zavolejte nám: +420 608 056 566  nebo nám nechte vzkaz zde.

Specifikace nemovitosti

Podlahová plocha
73.70
Počet obytných místností
3
Patro
1
Ložnice
3
Koupelna
1
Klimatizace
Ano
Balkón / terasa
Ne
Výhled na moře
Ano
Energie
Vodovodní síť, Kanalizace, Elektřina
Bazén
Ne
Rok výstavby
2026
Stav nemovitosti
Novostavba
Zahrada
Ne
Zařízenost
viz text

Zaujala vás tato nabídka?

Zavolejte nám na + 420 608 056 566 nebo nám napište

Adriatic Real

Realitní kancelář Adriatic Real s.r.o. specializující se na zprostředkování koupě nemovitosti na jadranském pobřeží Chorvatska a Černé Hory.
phonechevron-down
linkedin facebook pinterest youtube rss twitter instagram facebook-blank rss-blank linkedin-blank pinterest youtube twitter instagram