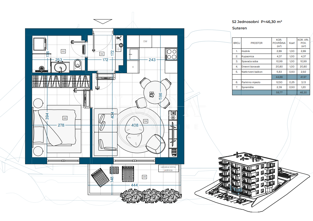
Byt S13 o rozloze 65,53 m² poskytuje dodatečný komfort a prostornost, ideální pro rodinný život.
V klidném středomořském prostředí Klenovic, pouhých sto metrů od moře, se staví Residence Klenovica - moderní rezidenční dům určený pro ty, kteří chtějí žít u moře, v tichu, přírodě a naprostém pohodlí.
Dům, který se nachází na mírném svahu, poskytuje většině bytů otevřený výhled na moře a dostatek světla po celý den.
Projekt zahrnuje 23 funkčně řešených bytů, ideálních pro rodinný život, druhý domov u moře nebo dlouhodobou investici.
Vysoký standard výstavby zahrnuje:
