Popis nemovitosti
Představujeme Vám samostatně stojící kamenný dům situovaný v klidné vesnici, nedaleko malebného Tinjanu. Tato nemovitost představuje ideální investiční příležitost, zejména pro zájemce o cestovní ruch.
Dům je připraven k dokončení dle vlastních představ nového majitele, přičemž základní stavební práce již byly provedeny.
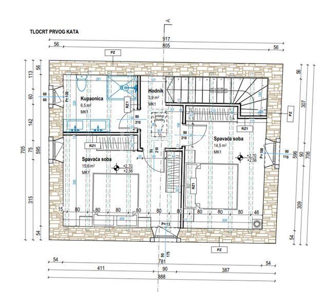
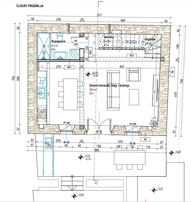
Stavební stav a provedené práce
Pro nemovitost bylo získáno stavební povolení a zahájení stavby bylo řádně nahlášeno. Dosud byly provedeny následující klíčové stavební práce:
- Podlahová deska: Postavena z prohlubní.
- Mezipatro: Vytvořeno z prohlubně, doplněné betonovým schodištěm.
- Střešní konstrukce: Nová dřevěná konstrukce se všemi vrstvami a povrchovou úpravou ze středomořské dlažby.
- Příčky: V přízemí je postavena příčka pro toaletu.
- Otvory: Byly provedeny nové otvory (celkem 4) dle projektu, s položením starých dlaždic na vnější fasádu.
Inženýrské sítě a vlastnictví
Nemovitost je již připojena k základním inženýrským sítím, což usnadňuje další fáze výstavby a snižuje počáteční investiční náklady:
- Vodovodní přípojka: Dům má zavedenou vodovodní přípojku.
- Elektrická přípojka: K dispozici je stavební přípojka elektřiny.
Vlastnictví nemovitosti je 1/1, což zaručuje jednoduchý a transparentní převod.
Investiční potenciál
Díky své poloze v klidné vesnici a již provedeným základním stavebním pracím představuje tato nemovitost ideální investici do cestovního ruchu. Po dokončení lze dům využít jako:
- Rekreační objekt k pronájmu.
- Soukromé letní sídlo.
- Základ pro agroturistiku.

