Zpět do Nabídky

Exkluzivní penthouse v novostavbě s výhledem na moře, Privlaka

Popis nemovitosti

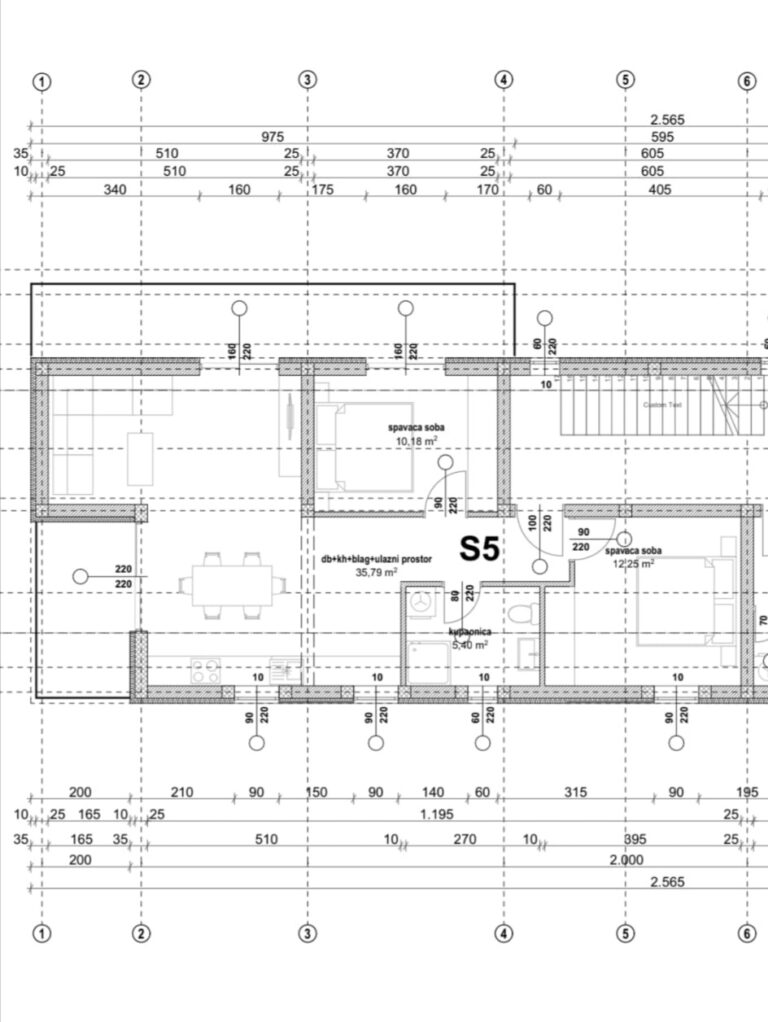
Byt S5 – Moderní byt ve výstavbě s bazénem na terase

Nabízíme k prodeji exkluzivní byt v novostavbě, která se nachází pouhých 200 metrů od upravené pláže. Tento byt nabízí nádherný výhled na moře a je ideální pro ty, kteří hledají luxusní bydlení s veškerým komfortem.


Dispozice bytu

Byt S5 se skládá z následujících místností:

  • Prostorný obývací pokoj s kuchyní a jídelnou
  • Dvě komfortní ložnice
  • Jedna koupelna
  • Jedna samostatná toaleta
  • Chodba
  • Krytá terasa
  • Střešní nekrytá terasa s bazénem

Součástí prodeje jsou také dvě parkovací místa, což zajišťuje pohodlné parkování přímo u budovy.


Technické specifikace a vybavení

Budova je postavena s důrazem na kvalitu a energetickou účinnost:

  • Konstrukce: Cihelné bloky s tepelnou izolací.
  • Vytápění a chlazení: Elektrické podlahové vytápění a čtyři klimatizace pro optimální teplotu po celý rok.
  • Okna: PVC dřevěná okna s trojvrstvým zasklením, roletami a moskytiérami.
  • Fasáda: Zateplena 10 cm polystyrenu pro vysokou energetickou účinnost.
  • Podlahové krytiny: Kombinace vysoce kvalitní keramiky a laminátu.
  • Odvodnění: Řešeno bio-čističkou.

Plochy jednotlivých částí bytu S5

  • Koupelna: 5,40 m²
  • Kuchyň, jídelna, obývací pokoj: 35,79 m²
  • Ložnice: 12,59 m²
  • Ložnice: 10,18 m²
  • Krytá terasa: 6,85 m²
  • Nekrytá terasa: 72,44 m²
  • 2 parkovací místa: 25,00 m²

Celková plocha S5: 168,25 m²


Důležité informace

  • Energetický certifikát: A
  • Předpokládané užívání: 1.10.2025
  • Předpokládané nastěhování: Léto 2025

Lokalita

Základní informace

Kód nemovitosti
56
Druh nemovitosti
Apartmány a byty
Oblast
Severní Dalmácie
Obec
Privlaka
Vzdálenost od moře
200m
Cena:
362.000
EUR
Pokud máte zájem o tuto nemovitost
Zavolejte nám: +420 608 056 566  nebo nám nechte vzkaz zde.

Specifikace nemovitosti

Podlahová plocha
168.25
Počet obytných místností
3
Patro
2
Ložnice
3
Koupelna
1
Klimatizace
Ano
Balkón / terasa
Ano
Výhled na moře
Ano
Energie
Vodovodní síť, Elektřina
Bazén
Ano
Rok výstavby
2025
Stav nemovitosti
Novostavba
Zahrada
Ne
Zařízenost
viz text

Zaujala vás tato nabídka?

Zavolejte nám na + 420 608 056 566 nebo nám napište

Adriatic Real

Realitní kancelář Adriatic Real s.r.o. specializující se na zprostředkování koupě nemovitosti na jadranském pobřeží Chorvatska a Černé Hory.
phonechevron-down
linkedin facebook pinterest youtube rss twitter instagram facebook-blank rss-blank linkedin-blank pinterest youtube twitter instagram