Představujeme exkluzivní nabídku prodeje apartmánů v moderní novostavbě, situované ve výjimečné lokalitě v Oštru. Projekt se nachází pouhých 30 metrů od moře a pláže, v klidném a atraktivním prostředí. Tato příležitost je ideální pro ty, kteří hledají příjemný život u moře, a zároveň představuje bezpečnou investici do budoucna.
Budova je navržena a postavena dle nejmodernějších stavebních standardů. Důraz je kladen na použití kvalitních materiálů, funkční dispozice a maximální využití prostoru, aby byly splněny veškeré požadavky na komfortní bydlení.
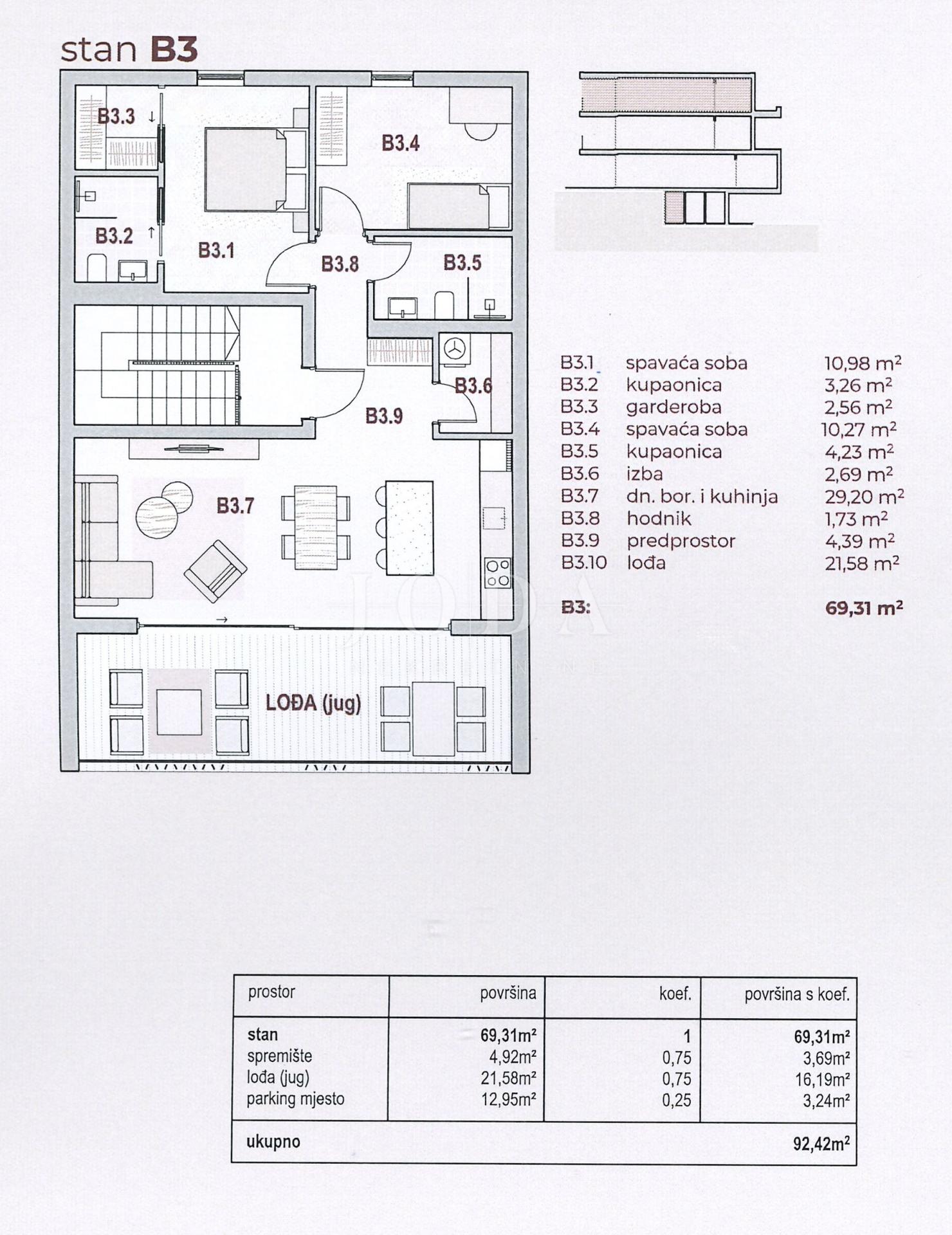
Plocha jednotlivých apartmánů se pohybuje od 70 m² do 120 m².
Lokalita Oštro nabízí celou řadu benefitů, které z ní činí ideální místo pro život i rekreaci:
Plánované dokončení výstavby je stanoveno na rok 2027.
