Představujeme exkluzivní nabídku prodeje apartmánů v moderní novostavbě, situované ve výjimečné lokalitě v Oštru. Tento projekt se nachází pouhých 30 metrů od moře a pláže, v klidném a atraktivním prostředí, což z něj činí ideální příležitost pro příjemný život u moře i bezpečnou investici.
Budova je navržena a postavena dle nejvyšších moderních stavebních standardů. Důraz je kladen na:
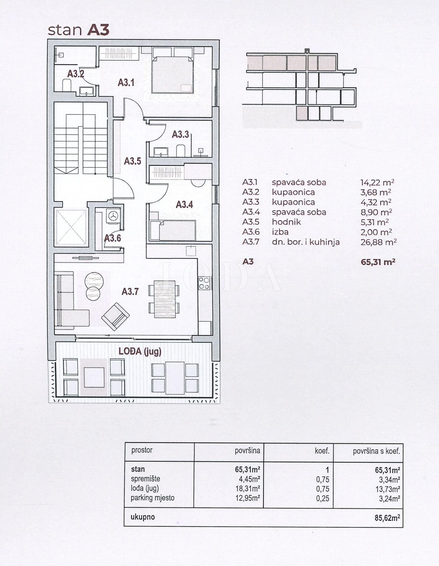
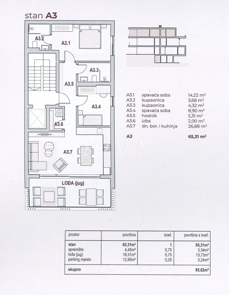
Projekt nabízí širokou škálu apartmánů různých velikostí a dispozic, aby vyhověl rozmanitým potřebám a preferencím:
Plocha jednotlivých apartmánů se pohybuje od 70 m² do 120 m².
Lokalita Oštro, kde se projekt nachází, nabízí řadu nesporných výhod, které z ní činí velmi žádané místo:
Plánované dokončení výstavby projektu je stanoveno na rok 2027.
