Byt S-2 je třípokojový byt nacházející se v přízemí stejného domu. Nabízí stejně kvalitní půdorys a prostorný obývací pokoj, který je elegantně propojen s kuchyní a jídelnou.
Obývací část se otevírá na krytou terasu, která prostoru dodává další rozměr a plynulé propojení s exteriérem, ideální pro relaxaci a venkovní stolování.
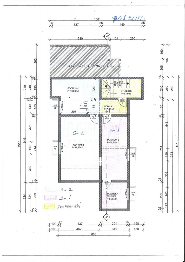
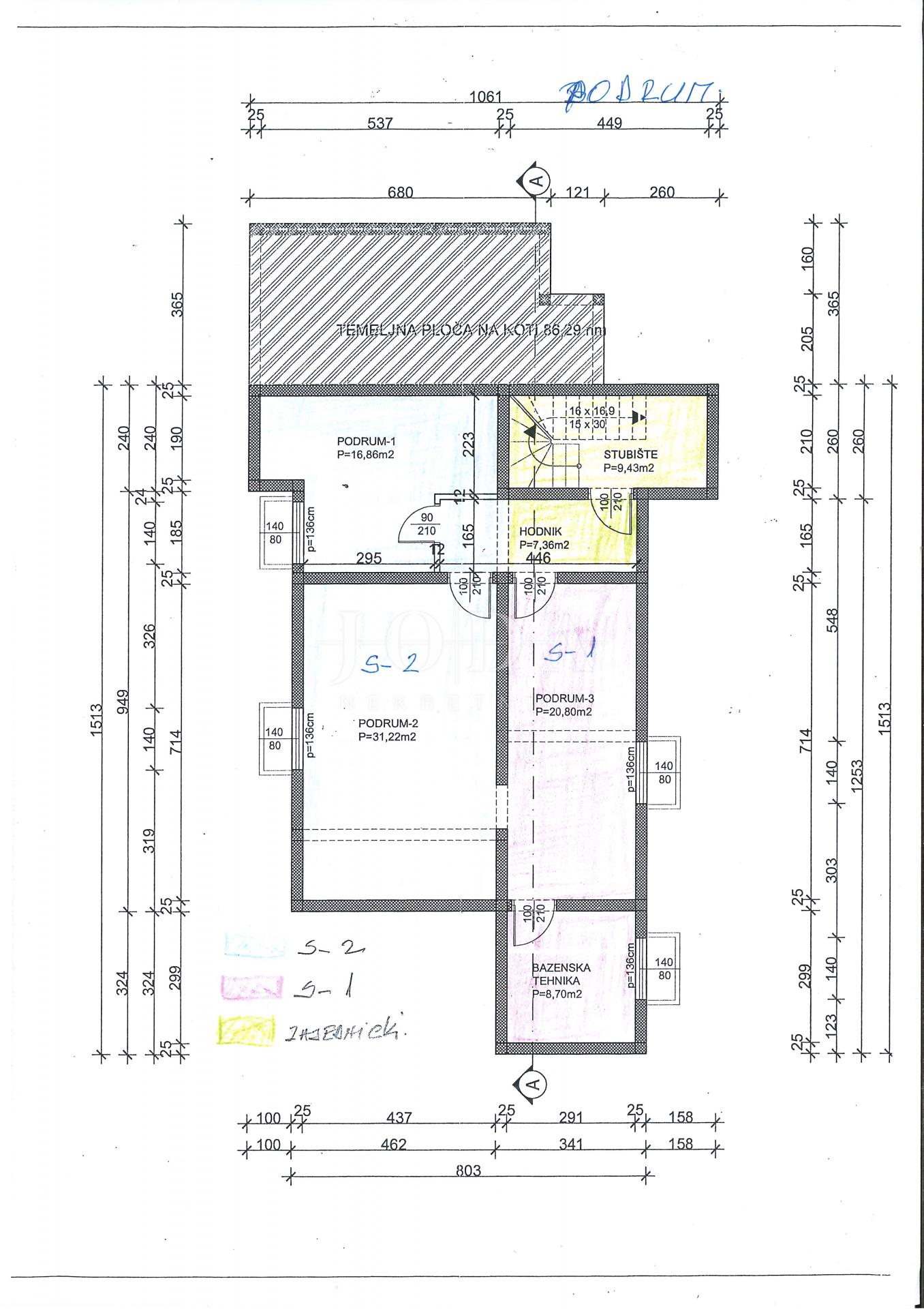
Stejně jako byt S-1, i tento byt disponuje vlastní wellness zónou v suterénu. Tento prostor je navržen jako soukromé útočiště pro relaxaci a lze jej plně přizpůsobit individuálním potřebám budoucího majitele.
Dům je navržen tak, aby bazén a terasa na opalování poskytovaly naprostou intimitu a nádherný výhled na moře, a to díky své vyvýšené poloze vzhledem k příjezdové cestě.
Byt S-2 se prodává kompletně dokončený, na klíč. Dokončení prací je plánováno na podzim 2026.
Uvedená cena nezahrnuje DPH.
