Zpět do Nabídky

Turnić – luxusní apartmán se 3 ložnicemi, terasou a výhledem na moře

Popis nemovitosti

Prostorný a kvalitní byt v Turnići s výhledem na moře

V klidné a vyhledávané části Turniće se prodává prostorný a mimořádně kvalitní byt v novější budově, který se nachází ve druhém, nejvyšším patře. Tato nemovitost představuje ideální volbu pro rodinný život, ale také jako bezpečná investice v lokalitě, kde jsou takové nabídky vzácností.


Popis bytu

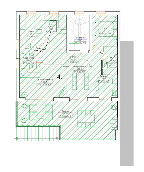
Byt o celkové rozloze 114,75 m² se skládá z:

  • Tří ložnic
  • Pohodlného obývacího pokoje s jídelnou a kuchyní
  • Velkého venkovního prostoru

Prostorná terasa o rozloze 36,48 m² nabízí otevřený výhled na moře a je ideální pro celoroční bydlení. Díky své orientaci na jih, západ a sever je byt mimořádně světlý a příjemný k pobytu.


Vybavení a technické parametry

Nemovitost se prodává kompletně zařízená, s pečlivě vybranými detaily a bez nutnosti dalších investic. K dalšímu vybavení patří:

  • Vytápění: Ústřední plynové s podlahovým vytápěním v obývacím prostoru a radiátory v pokojích.
  • Chlazení: Klimatizace zajišťuje příjemnou teplotu během teplejších měsíců.
  • Okna: Nainstalované PVC truhlářské práce.
  • Bezpečnost: Bezpečnostní dveře a kamerový systém.

Příslušenství k bytu (S4)

Byt označený S4, ve druhém patře, sestává z:

  • Chodby
  • Obývacího pokoje, kuchyně a jídelny
  • Tří ložnic
  • Koupelny
  • Toalety
  • Terasy

Užitná (čistá) plocha bytu je 114,75 m² (užitná plocha 87,39 m²).

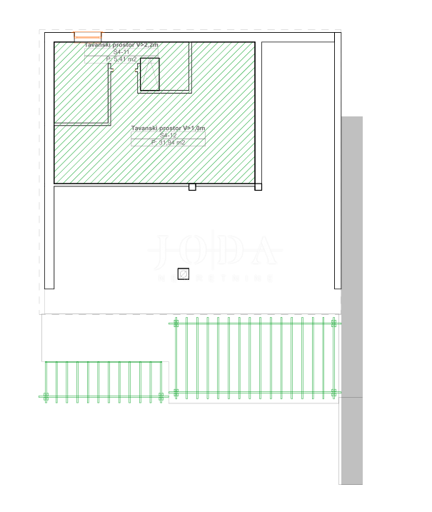
K bytu S4 dále náleží:

  • Komora: Označená S4/11, v přízemí, užitná (čistá) plocha 2,84 m² (užitná plocha 1,42 m²).
  • Venkovní parkovací místo 1: Označené S4-P1, užitná (čistá) plocha 12,50 m² (užitná plocha 2,50 m²).
  • Venkovní parkovací místo 2: Označené S4-P2, užitná (čistá) plocha 12,50 m² (užitná plocha 2,50 m²).
  • Půdní prostor: Užitná (čistá) plocha 37,35 m² (užitná plocha 13,89 m²).

Lokalita

Základní informace

Kód nemovitosti
7601
Druh nemovitosti
Apartmány a byty
Obec
Turnić, Rijeka
Cena:
490.000
EUR
Pokud máte zájem o tuto nemovitost
Zavolejte nám: +420 608 056 566  nebo nám nechte vzkaz zde.

Specifikace nemovitosti

Podlahová plocha
130
Počet obytných místností
4
Patro
2. patro
Ložnice
3
Koupelna
1

Zaujala vás tato nabídka?

Zavolejte nám na + 420 608 056 566 nebo nám napište

Adriatic Real

Realitní kancelář Adriatic Real s.r.o. specializující se na zprostředkování koupě nemovitosti na jadranském pobřeží Chorvatska a Černé Hory.
phonechevron-down
linkedin facebook pinterest youtube rss twitter instagram facebook-blank rss-blank linkedin-blank pinterest youtube twitter instagram