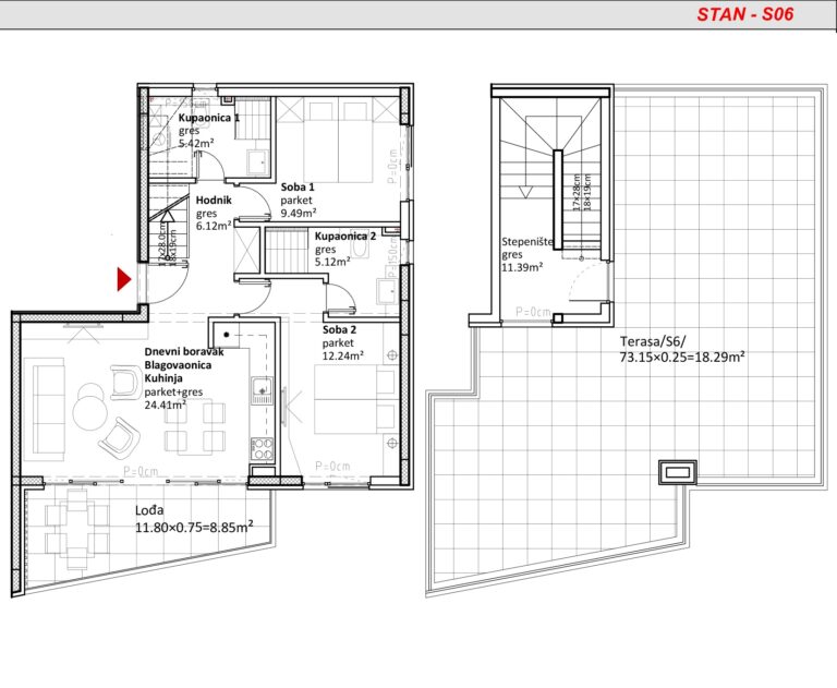
Prodává se prostorný třípokojový apartmán o rozloze 104 m², který se nachází v první řadě u moře v Sukošanu, ve druhém patře moderní budovy. Tento elegantní apartmán nabízí kombinaci luxusu, pohodlí a mimořádného výhledu na moře.
Apartmán je postaven podle vysokých standardů kvality s použitím nejkvalitnějších materiálů a velkými prosklenými otvory, které propouštějí dostatek přirozeného světla. Je klimatizovaný a vybaven moderními systémy vytápění a chlazení, které zajišťují komfort po celý rok.
Tento apartmán se nachází v první řadě u moře s přímým přístupem na pláž a veškerou potřebnou občanskou vybaveností v blízkosti a je ideální volbou pro rodinný život, luxusní dovolenou nebo jako investice s vysokým potenciálem pro turistický pronájem.
