V klidné a zelené části Klenovic, jen pár minut od moře, se nachází moderní novostavba, která představuje dokonalou kombinaci současné architektury, funkčnosti a středomořského způsobu života.
Jedná se o projekt osvědčeného investora, postavený s důrazem na kvalitu, trvanlivost a příjemný pobyt po celý rok.
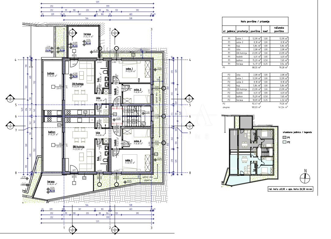
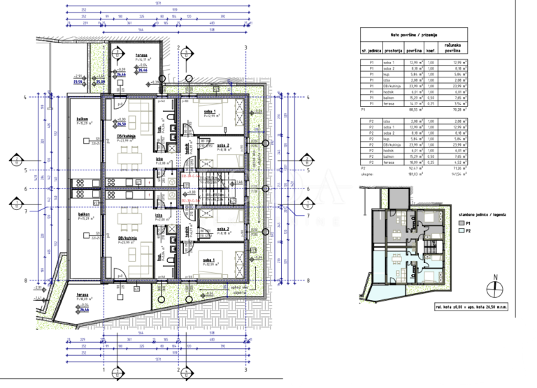
Budova se skládá z pečlivě navržených bytů s prostornými balkony a terasami, které díky své vyvýšené poloze nabízejí krásný, otevřený výhled na moře z prvního patra.
Zvláštní pozornost byla věnována funkčnosti prostoru – půdorysy byly promyšleny tak, aby byl každý metr čtvereční využit maximálně a byty poskytovaly pocit vzdušnosti a pohodlí.
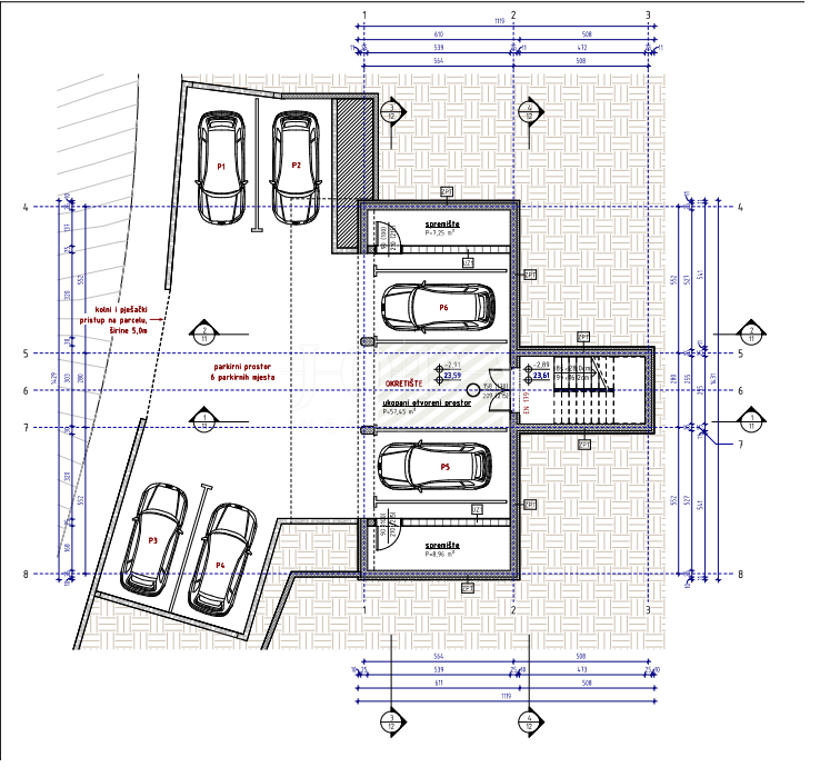
Kupujícím je poskytnuta další výhoda v podobě výběru parkovacího řešení:
Plánovaný termín nastěhování je léto 2027, což kupujícím dává dostatek času na plánování a zajištění dlouhodobé investice do nemovitosti s dlouhodobou hodnotou – ať už pro:
Pokud hledáte nový byt v atraktivní pobřežní lokalitě s výhledem na moře a podpisem spolehlivého investora, je to příležitost, kterou stojí za to včas zvážit.
