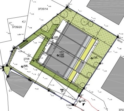
Nabízíme k prodeji kompletní projekt v nedokončené fázi, situovaný v atraktivní lokalitě ve městě Krk. Nemovitost se nachází pouhých 250 metrů od moře, což z ní činí ideální investiční příležitost.
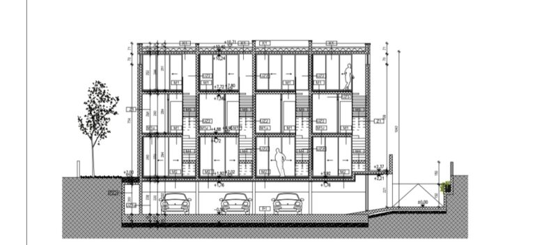
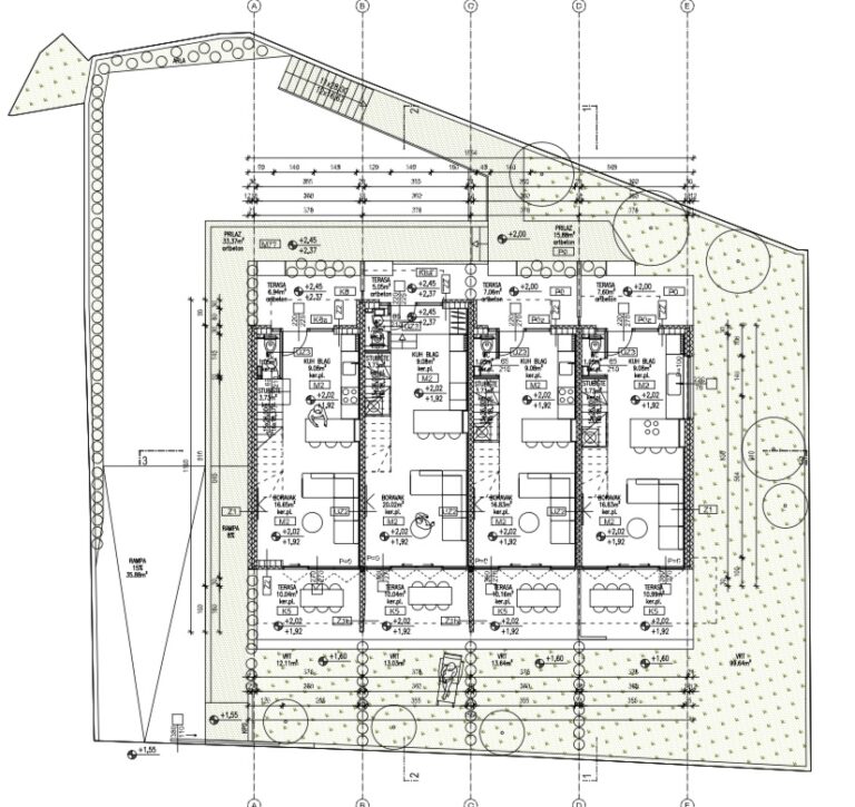
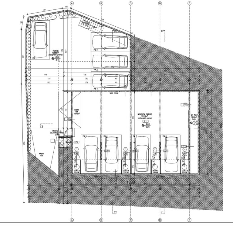
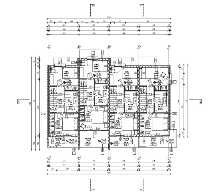
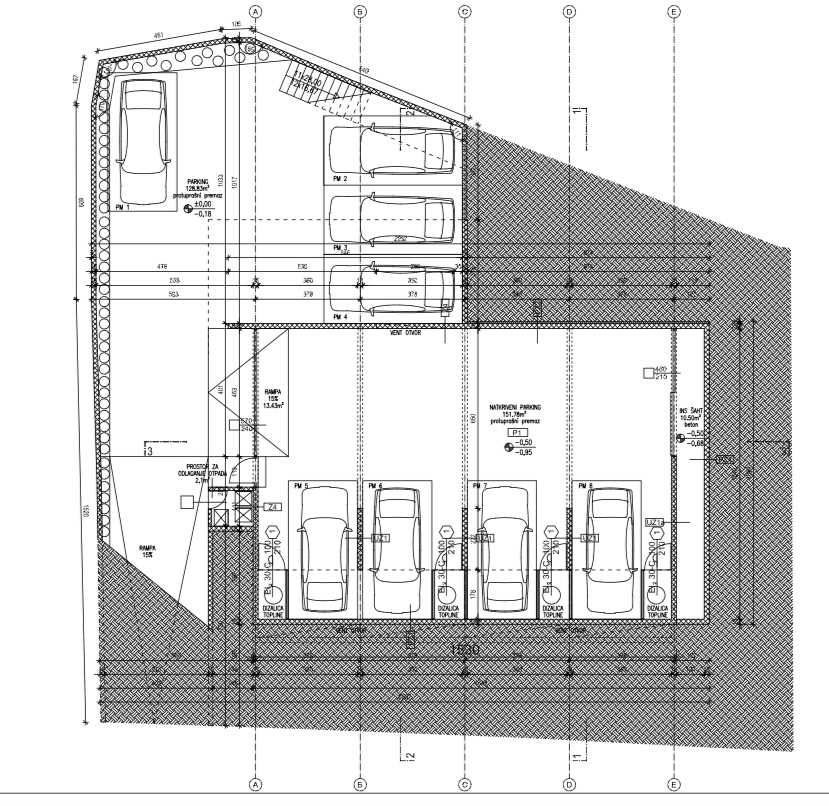
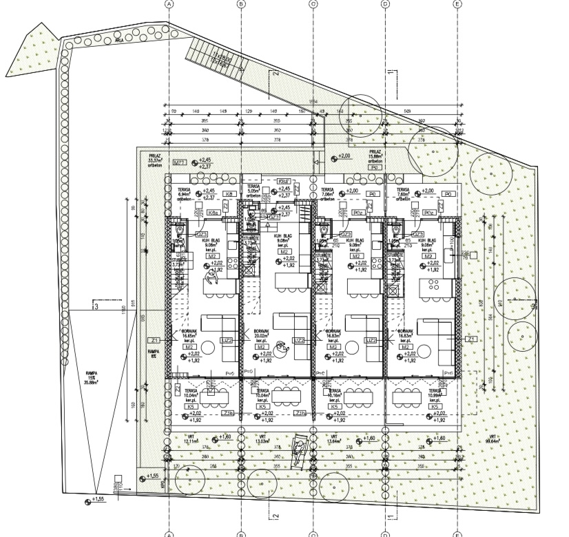
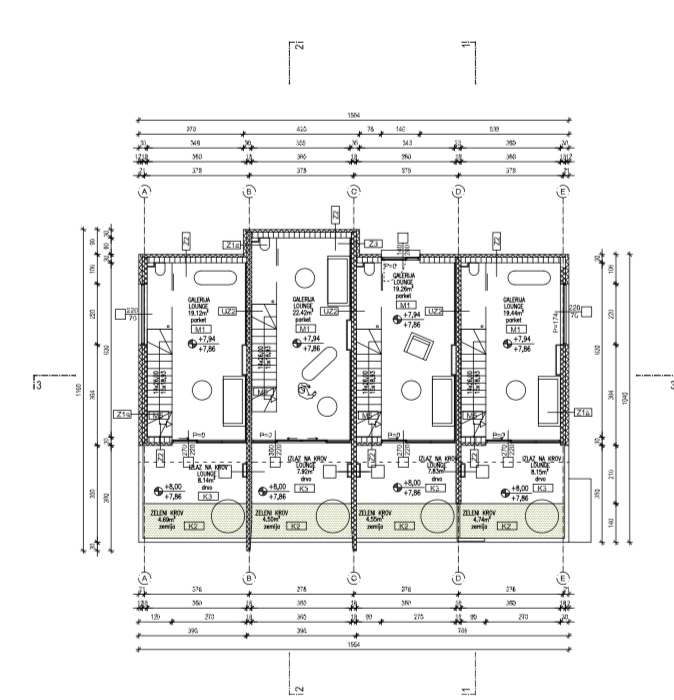
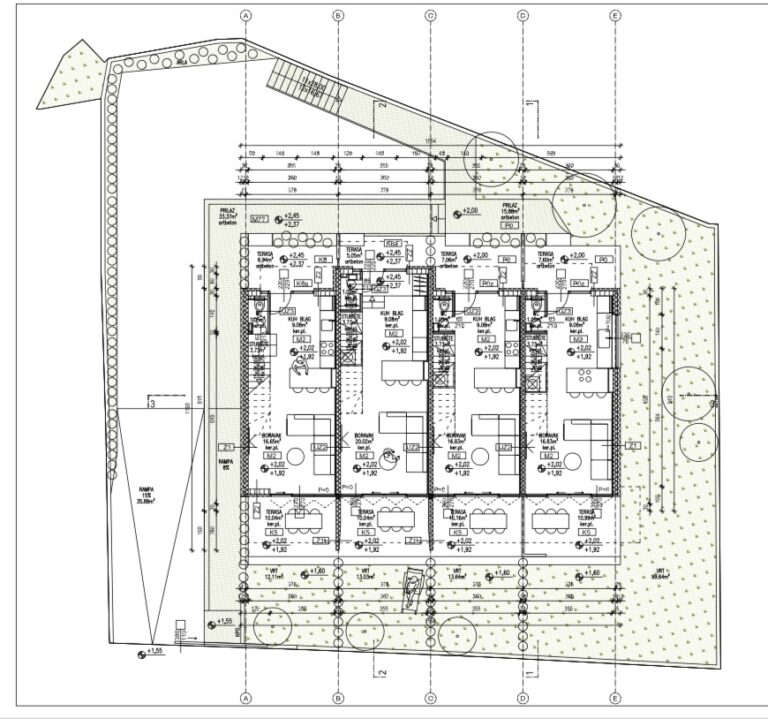
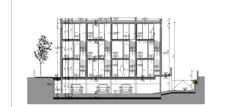
Budova se skládá ze čtyř samostatných apartmánů a je doplněna o venkovní parkovací garáže a podzemní garáž.
Projekt je dodáván s řádným stavebním povolením, které umožňuje hladké pokračování výstavby. Budoucí majitelé tak mají jedinečnou možnost dokončit nemovitost dle vlastních přání a potřeb, což nabízí značnou flexibilitu v designu a vybavení.
Kromě samotné budovy existuje také možnost koupě společnosti, což může dále usnadnit administrativní část procesu koupě a prodeje.
Lokalita ve městě Krk nabízí všechny výhody městského života v kombinaci s bezprostřední blízkostí moře a autentickou středomořskou atmosférou. Tato oblast je vyhledávaná pro svou krásu a turistický potenciál.
Vzhledem k velkému potenciálu a vynikající poloze je tato nabídka příležitostí, kterou byste si neměli nechat ujít. Pro více informací a pro domluvení prohlídky nás neváhejte kontaktovat.
